Prémium otthonok hosszú távra.
Kérje személyre szabott ajánlatunkat!

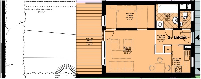
B épület, földszint 2. lakás – 41 m² | 1+½ szoba | 14 m² ÉNy-i tájolású terasz és kert
Ez a 41 m²-es, átgondolt elrendezésű lakás tökéletes választás azok számára, akik egy praktikus, mégis stílusos földszinti otthont keresnek saját kertkapcsolattal. A 14 m²-es, északnyugati tájolású terasz és kert különleges értéket képvisel ebben a kategóriában, hiszen a kültér így a mindennapok természetes meghosszabbításává válik.
A belső terek világosak, letisztultak, jól strukturáltak – az amerikai konyhás nappali modern, világos tónusú felsőkategóriás konyhabútorral van felszerelve, amely ízlésesen harmonizál a gondosan válogatott burkolatokkal. A tér kompaktsága ellenére az otthon nyitottnak és élhetőnek hat, ideális akár egyedülállóknak, akár fiatal pároknak.
A fürdőszoba design szaniterekkel, egyedi kiosztású burkolatokkal és minimalista stílusban lett kialakítva, biztosítva a kényelmet és az elegáns megjelenést. A természetes fény beáramlása és a közvetlen kültéri kapcsolat meleg, otthonos hangulatot teremt.
Ez a lakás ideális választás azoknak, akik kis alapterületen szeretnének maximális életminőséget – privát kerttel, napfénnyel és kifinomult belső megoldásokkal.


A épület, földszint 1. lakás – 49 m² | 2 szoba | 9 m² DK-i tájolású terasz | 52 m² saját kert

A épület, földszint 2. lakás – 58 m² | 1+2 fél szoba | 11 m² ÉNy-i terasz | 39 m² privát kert

A épület, földszint 3. lakás – 52 m² | 2 szoba | 11 m² ÉNy-i tájolású terasz | 39 m² saját kert

A épület, földszint 4. lakás – 50 m² | 2 szoba | 5 m² DK-i tájolású terasz | 27 m² saját kert


A épület, 2. emelet 1. lakás – 60 m² | 1+2 fél szoba | 32 m² DK-i + 17 m² ÉNy-i terasz

A épület, 2. emelet 2. lakás – 57 m² | 1+2 fél szoba | 32 m² DK-i terasz + 13 m² ÉNy-i terasz + 4 m² erkély

B épület, földszint 1. lakás – 78 m² | 3 szoba | 2 terasz (összesen 18 m², ÉNy) | dupla kert (DK tájolású)

B épület, földszint 2. lakás – 41 m² | 1+½ szoba | 14 m² ÉNy-i tájolású terasz és kert

B épület, földszint 3. lakás – 52 m² | 2 szoba | 7 m² ÉNy-i tájolású terasz és saját kert

B épület, földszint 4. lakás – 62 m² | 2+½ szoba | 9 m² ÉK-i tájolású terasz | privát kert

B épület, földszint 5. lakás – 40 m² | 1+½ szoba | 9 m² ÉK-i tájolású terasz | saját, nagy kert

B épület, földszint 6. lakás – 36 m² | 2 szoba | 9 m² DNy-i tájolású terasz | saját kert

B épület, 1. emelet 1. lakás – 78 m² | 3 szoba | 2 erkély összesen 18 m² (ÉNy és DK tájolás)


B épület, 1. emelet 5. lakás – 78 m² | 3 szoba | 12 m² erkély két tájolással (ÉK és DNy)


B épület, 2. emelet 3. lakás – 52 m² | 2 szoba | összesen 12 m² ÉK-i és DNy-i tájolású erkély

B épület, tetőtér 04. lakás – 62 m² | 2+½ szoba | 12 m² erkély két tájolással (ÉK és DNy)

B épület, 2. emelet 5. lakás – 46 m² | 2 szoba | összesen 12 m² ÉK-i és DNy-i tájolású erkély

C épület, földszint 1. lakás – 53 m² | 2 szoba | 12 m² erkély két tájolással (ÉK és DNy)

C épület, földszint 2. lakás – 56 m² | 1+2 fél szoba | 8 m² DNy-i tájolású terasz | 29 m² saját kert

C épület, földszint 3. lakás – 31 m² | Garzon | 8 m² DNy-i tájolású terasz | 13 m² saját kert


