Prémium otthonok hosszú távra.
Kérje személyre szabott ajánlatunkat!

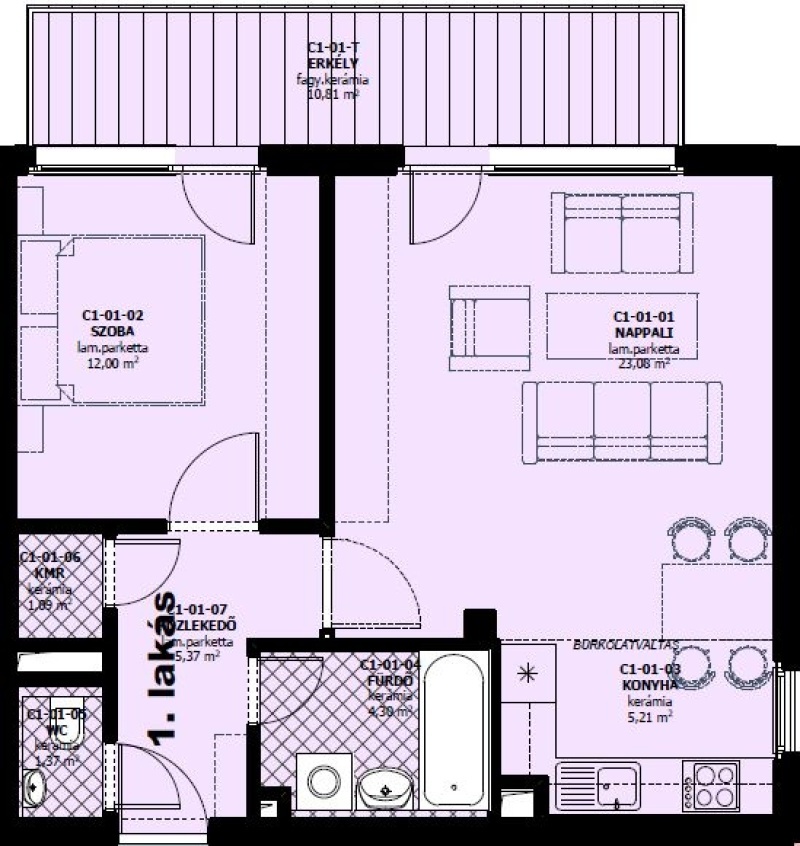
C épület, 1. emelet 1. lakás – 52 m² | 2 szoba | 11 m² ÉK-i tájolású erkély
Ez az 52 m²-es, kétszobás emeleti lakás tökéletes választás azok számára, akik világos, jól szervezett és funkcionálisan kialakított otthonra vágynak. A lakás egyik legvonzóbb eleme a 11 m²-es, északkeleti tájolású erkély, amely mind a nappaliból, mind a hálószobából közvetlenül megközelíthető, és ideális helyszín lehet reggeli kávézásokhoz vagy nyugodt délutáni pihenéshez.
A padlótól plafonig érő üvegfelületek nemcsak a kilátást nyitják meg a zöld kert felé, hanem a természetes fényt is bőségesen beengedik – így a lakás mindig világos, még kevésbé napos időszakokban is. Az amerikai konyhás nappali középpontjában a világos tónusú, felsőkategóriás konyhabútor és a gondosan kiválasztott burkolatok biztosítják a letisztult, harmonikus megjelenést.
A fürdőszoba kialakítása a kényelem és az elegancia tökéletes egyensúlyát tükrözi: design szaniterek, egy teljes méretű kád, valamint egyedi kiosztású burkolatok adják a helyiség karakterét. A WC külön helyiségben található, saját kézmosóval felszerelve.
Ez a lakás ideális választás mindazok számára, akik egy kényelmes, napfényes és jól kihasználható otthonban gondolkodnak – ahol a tér és a részletek is a minőséget képviselik.


A épület, földszint 1. lakás – 49 m² | 2 szoba | 9 m² DK-i tájolású terasz | 52 m² saját kert

A épület, földszint 2. lakás – 58 m² | 1+2 fél szoba | 11 m² ÉNy-i terasz | 39 m² privát kert

A épület, földszint 3. lakás – 52 m² | 2 szoba | 11 m² ÉNy-i tájolású terasz | 39 m² saját kert

A épület, földszint 4. lakás – 50 m² | 2 szoba | 5 m² DK-i tájolású terasz | 27 m² saját kert


A épület, 2. emelet 1. lakás – 60 m² | 1+2 fél szoba | 32 m² DK-i + 17 m² ÉNy-i terasz

A épület, 2. emelet 2. lakás – 57 m² | 1+2 fél szoba | 32 m² DK-i terasz + 13 m² ÉNy-i terasz + 4 m² erkély

B épület, földszint 1. lakás – 78 m² | 3 szoba | 2 terasz (összesen 18 m², ÉNy) | dupla kert (DK tájolású)

B épület, földszint 2. lakás – 41 m² | 1+½ szoba | 14 m² ÉNy-i tájolású terasz és kert

B épület, földszint 3. lakás – 52 m² | 2 szoba | 7 m² ÉNy-i tájolású terasz és saját kert

B épület, földszint 4. lakás – 62 m² | 2+½ szoba | 9 m² ÉK-i tájolású terasz | privát kert

B épület, földszint 5. lakás – 40 m² | 1+½ szoba | 9 m² ÉK-i tájolású terasz | saját, nagy kert

B épület, földszint 6. lakás – 36 m² | 2 szoba | 9 m² DNy-i tájolású terasz | saját kert

B épület, 1. emelet 1. lakás – 78 m² | 3 szoba | 2 erkély összesen 18 m² (ÉNy és DK tájolás)


B épület, 1. emelet 5. lakás – 78 m² | 3 szoba | 12 m² erkély két tájolással (ÉK és DNy)


B épület, 2. emelet 3. lakás – 52 m² | 2 szoba | összesen 12 m² ÉK-i és DNy-i tájolású erkély

B épület, tetőtér 04. lakás – 62 m² | 2+½ szoba | 12 m² erkély két tájolással (ÉK és DNy)

B épület, 2. emelet 5. lakás – 46 m² | 2 szoba | összesen 12 m² ÉK-i és DNy-i tájolású erkély

C épület, földszint 1. lakás – 53 m² | 2 szoba | 12 m² erkély két tájolással (ÉK és DNy)

C épület, földszint 2. lakás – 56 m² | 1+2 fél szoba | 8 m² DNy-i tájolású terasz | 29 m² saját kert

C épület, földszint 3. lakás – 31 m² | Garzon | 8 m² DNy-i tájolású terasz | 13 m² saját kert


